Apartamento a venda em Jundiai
Avenida Nove de JulhoAnhangabaú, Jundiaí - SP
Informações
- Perfil: Novo
- Posição: Sol da Manhã
- Mobília: Não Mobiliado
- Em Condomínio
- Condomínio: Condominio Reserva Alta Vista Jundiai
- Incorporação: Teixeira Duarte
- Nº de Andares: 25
- Nº de Unidades por Andar: 4
- Andar: 11º
- Ano da Construção: 2024
- Aceita FinanciamentoSimular Financimento
Medidas
- Área Total: 175 m² (R$ 12.514/m²)
- Área Privativa: 175 m²
- Área Construída: 175 m²
Descrição
Viva no ápice do conforto e sofisticação em Jundiaí!
Apresentamos um apartamento de Alto Padrão, uma verdadeira joia localizada na prestigiada Avenida Nove de Julho, no charmoso bairro Anhangabaú, em Jundiaí/SP. Situado no renomado Condomínio Reserva Alta Vista Jundiaí, este imóvel exclusivo oferece uma experiência de vida incomparável.
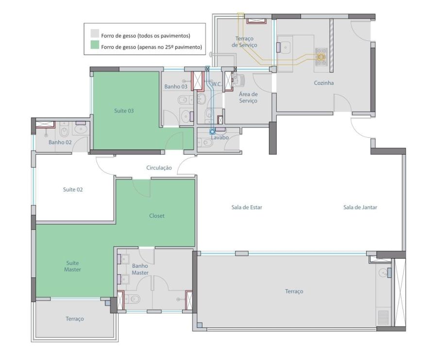
Com 175m² de área privativa, este apartamento no 11º andar é um convite ao bem-estar e à elegância. Desfrute de ambientes amplos e luminosos, perfeitamente distribuídos em 3 dormitórios, sendo 3 suítes, 2 deles com closet, suite master com sacada privativa e pia dupla no banheiro, ideais para o conforto e privacidade de toda a família. Sala em 3 ambientes espaçosos, um lavabo.
A cozinha, moderna e funcional, com bancada em granito e pia dupla é perfeita para os amantes da gastronomia. Area de serviço com banheiro de apoio e saida para terraço tecnico, ideal para instalação das maquinas de ar condicionado.
E para os momentos de lazer, uma sacada com churrasqueira proporciona momentos inesquecíveis com amigos e familiares, apreciando a vista panorâmica da cidade e da Serra do Japi.
Este imóvel ainda oferece 3 vagas de garagem, garantindo comodidade e segurança para seus veículos.
Será entregue no padrão construtora com bancadas em pedra, porcelanato na sacada e areas molhadas, demais ambientes no contrapiso.
Lazer e Comodidade em um só lugar:
O Condomínio Reserva Alta Vista Jundiaí é um verdadeiro clube residencial, com infraestrutura completa para todas as idades. Desfrute de:
* Academia moderna e equipada
* Piscinas adulto e infantil, aquecida para maior conforto
* Espaço gourmet para celebrar momentos especiais
* Salão de festas elegante e sofisticado
* Salão de jogos para diversão garantida
* Brinquedoteca para a alegria das crianças
* Playground seguro e divertido
* Quadra poliesportiva para a prática de esportes
* Churrasqueira para momentos de confraternização
* Sauna e SPA para relaxamento total
* Bicicletário para os amantes do ciclismo
* Lounge para momentos de descontração
* Jardim exuberante
* Espaço de beleza para cuidar de você
* Portaria 24 horas para sua segurança e tranquilidade
Localização Privilegiada:
Além de todas as qualidades do imóvel e do condomínio, a localização é um diferencial. O bairro Anhangabaú oferece fácil acesso a uma ampla gama de serviços e conveniências, como:
* Açougue
* Feiras e supermercados
* Comércio variado
* Escolas particulares e públicas de qualidade
* Faculdades renomadas
* Farmácias
* Hospitais
* Pontos de ônibus e táxi
* Postos de gasolina
* Postos de saúde
Além de uma entrada interna e exclusiva para o Jundiai Shopping.
Não perca esta oportunidade única de viver com conforto, sofisticação e praticidade em um dos melhores endereços de Jundiaí!
Características
- Academia
- Água Quente
- Área de Serviço com Banheiro
- Bicicletário
- Brinquedoteca
- Churrasqueira
- Dep. de Empregada
- Elevador
- Espaço de Beleza
- Espaço Gourmet
- Garagem
- Internet Banda Larga
- Jardim
- Lounge
- Permite Animais
- Piscina
- Piscina Aquecida
- Playground
- Portaria 24 Horas
- Quadra Poliesportiva
- Sacada com Churrasqueira
- Salão de Festas
- Salão de Jogos
- Sauna
- SPA
- Vista Panorâmica
O que tem perto?
- Açougue, Feiras e Supermercados
- Comércio
- Escolas Particulares
- Escolas Públicas
- Faculdade
- Farmácia
- Hospital
- Ponto de Oníbus
- Ponto de táxi
- Posto de Gasolina
- Posto de Saúde
- Praias





























